Loading...
  • MietAngebote

Angebot

82m² Wohnung in Prettin

Beschreibung

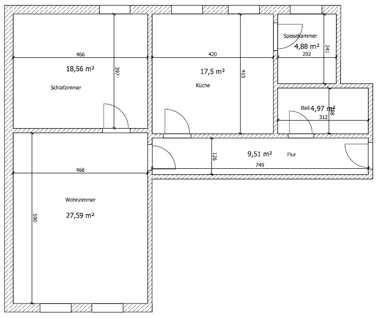
Diese 2-Zimmer-Wohnung in Prettin bietet auf 82 m² eine gut durchdachte Raumaufteilung. Der großzügige Wohnbereich wirkt durch seine offene Gestaltung einladend und bietet ausreichend Platz für individuelle Einrichtungsideen. Das Schlafzimmer ist angenehm geschnitten und ermöglicht eine ruhige Atmosphäre.

Die vorhandene Einbauküche ist funktional ausgestattet und bietet genügend Stauraum. Das Badezimmer verfügt über eine Badewanne und bietet damit zusätzlichen Komfort.

Ein weiteres Plus ist die gemeinschaftliche Gartennutzung, die allen Mietparteien zur Verfügung steht. Die Wohnung eignet sich ideal für Singles oder Paare, die Wert auf eine ruhige Wohnlage legen.

Daten

Lage
06925 Annaburg OT Prettin, Lindenstr. 12
Wohnfläche
82 m²
Wohnräume
2
Bäder
1
Grundmiete
350€
Nebenkosten
150€
Energie
Effizienzklasse E
Heizung / WW
zentral
Sonstiges
Keller, Gartenmitnutzung, Einbauküche